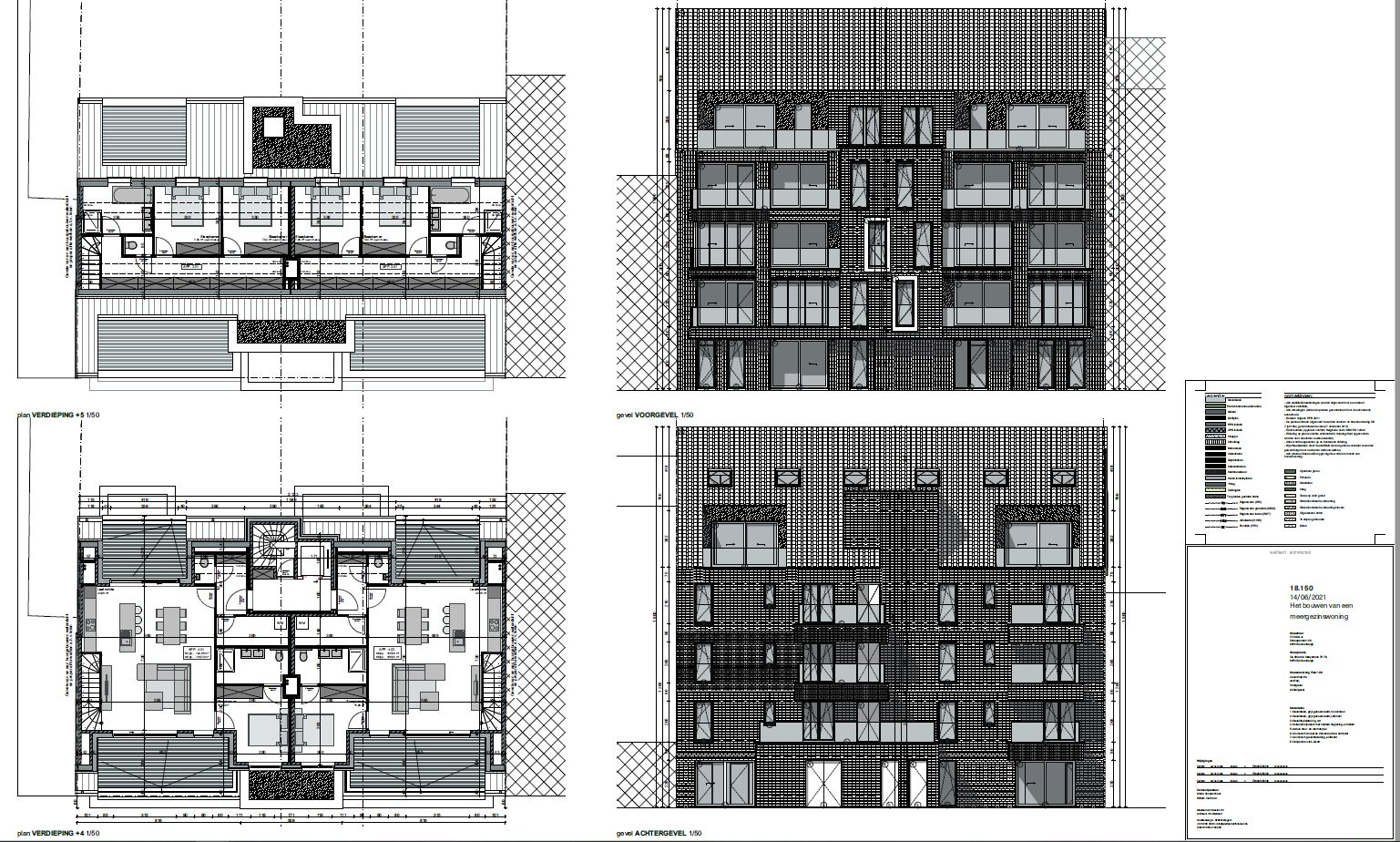
Residentie ELYANA (Blankenberge)
Van de bouwheer kreeg NV Projectbouw het vertrouwen om de volledige bouwcoördinatie op zich te nemen.
Door onze ervaring en afspraken met de onderaannemers kunnen we ervoor zorgen dat we topkwaliteit leveren en dit aan scherpe prijzen. We begeleiden de bouwheer van de start tot de oplevering van het gebouw.
Andere projecten

Residentie Golfbreker
2016
Eerste appartementsgebouw met een EPB op het gelijkvloers van 19 aan de kust.

Residentie Sara
April 2018
Dit project is uniek voor België omdat voor de eerste keer een batterij zal gebruikt worden die de geproduceerde energie zal opslaan om de algemene delen en de appartementen van het gebouw met stroom te voorzien.

Residentie Pollock
Start 2020
Het gebouw bestaat uit 6 appartementen waarvan elke entiteit beschikt over een ruim terras, een berging, gemeenschappelijke fietsenberging en een afvalberging.