Residentie Sara (Blankenberge)
In augustus 2018 zijn de bouwwerken van ons nieuw project ‘Residentie Sara’ gestart.
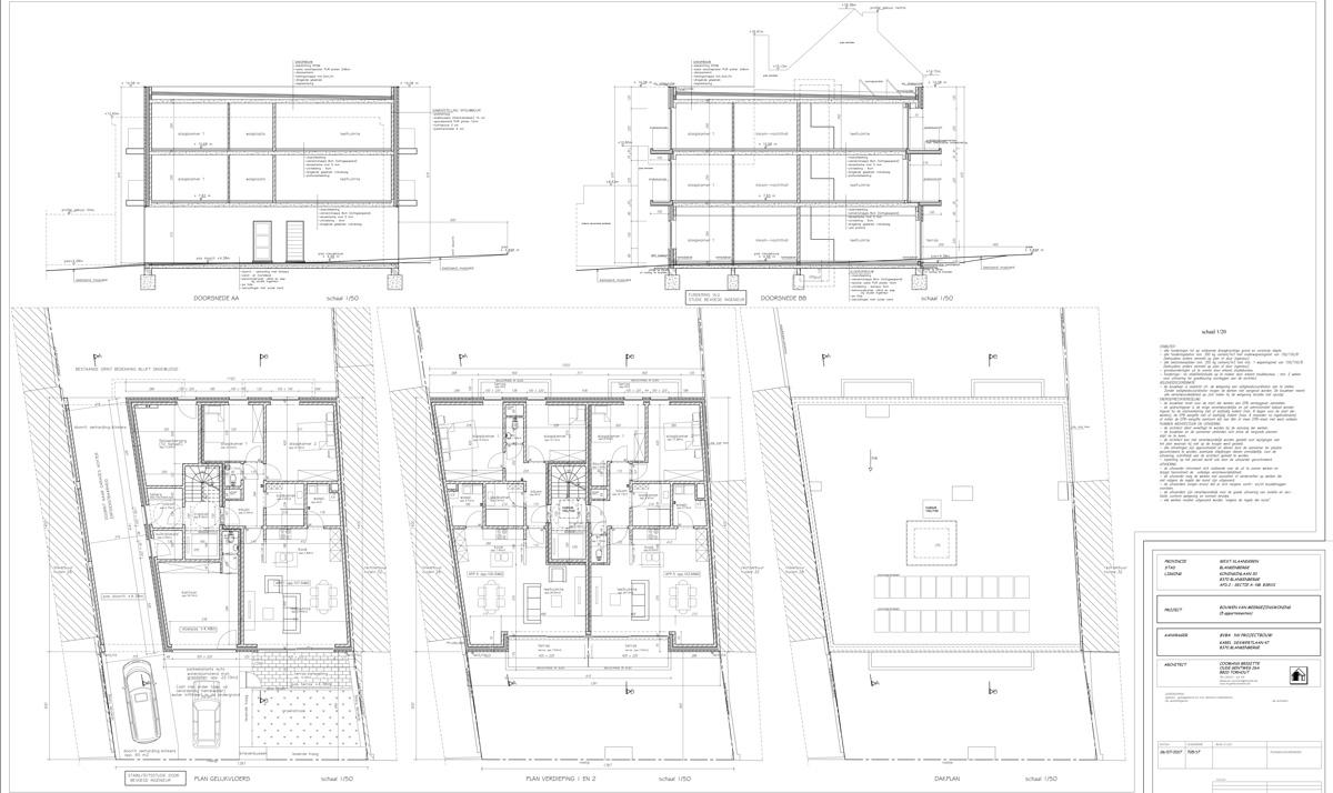
- Koninginlaan 30 te Blankenberge
Andere projecten

Residentie Pollock
Start 2020
Het gebouw bestaat uit 6 appartementen waarvan elke entiteit beschikt over een ruim terras, een berging, gemeenschappelijke fietsenberging en een afvalberging.

RESIDENTIE GOLFBREKER
2016
Eerste appartementsgebouw met een EPB op het gelijkvloers van 19 aan de kust.